Das Drachental

Ein DSA-Gruppenabenteuer, Stufe 5–10

von Sven Helmer und Peter Diefenbach

1 Das Abenteuer

Dieses Abenteuer dachte sich Sven ursprünglich im AD&D-Universum aus. Als Sven sich DSA zuwandte, portierten wir es gemeinsam ins andere Regelwerk und bauten es dabei weiter aus. Das gesamte Setting ist aber immer noch kein reines Aventurien. Formal lösten wir das Problem, indem wir das Drachental von einer Gebirgskette umschlossen, so dass innerhalb eine andere Evolution und Geschichte stattfinden konnte als außerhalb. Vielleicht ist es aber ehrlicher, die Handlung nach Güldenland oder auf eine ferne Insel zu legen, wenn man die Helden glaubhaft dorthin bekommt.

Die Handlung ist recht komplex, würde also reine Anfänger überfordern. Das Abenteuer ist ausgelegt für Helden, die sich schon einen gewissen Ruf erarbeitet haben. Aber auch mit Stufe 2 Helden spielbar und dann sehr reizvoll für den Spielleiter.

Das Abenteuer benötigt je nach Spiellaune und Ausschmückungsgrad zwischen 8 und 16 Spielabenden.

Als wir dieses Abenteuer mit einer 6köpfigen Heldengruppe spielten, stellten wir fest, dass dies für einen Spielleiter recht anstrengend ist. Mit zwei Spielleitern klappte es deutlich besser. Wenn sich die Gruppe trennte, konnten wir zwei Handlungsstränge gleichzeitig verfolgen. Ansonsten kümmerte sich ein Spielleiter um die Handlung, während der andere die Meisterpersonen mit Leben füllte.

1.1 Textdarstellung

Damit ein Spielleiter sich rasch in dem Dokument zurechtfindet, sind die verschiedenen Informationen gekennzeichnet – je nachdem, wie offen sie den Spielern mitgeteilt werden sollten.

Allgemeine Spielerinformationen:

Diesen Text kannst Du wörtlich laut vorlesen. Es handelt sich zum Beispiel um eine Raumbeschreibung, die erzählt, was die Helden auf den ersten Blick wahrnehmen.

Spezielle Informationen:

Was so formatiert ist, können die Helden feststellen, wenn sie sich genauer umschauen.

Meisterinformationen:

Und diese Hintergrundinformation ist nur für den Meister bestimmt, nicht für die Helden.

2 Überblick

2.1 Vorgeschichte

Meisterinformationen:

In einem großen, weiten Tal, dessen einzige Ausgänge zwei schmale Felseinschnitte im Süden und Norden sind, liegt die kleine, befestigte Stadt Catanez. Obwohl das Tal auch Wohnort von fünf Drachen ist und die Stadt im Grenzgebiet zur Wildnis liegt, verlief das Leben in der Stadt bis jetzt relativ ruhig. Bei den Drachen handelt es sich nämlich um drei böse (rot, weiß und schwarz) und zwei gute Drachen (silbern und kupfern), die sich gegenseitig in Schach gehalten haben. Die Drachen haben außerdem einige zwielichtige Charaktere davon abgehalten, im Tal etwas Schurkisches zu unternehmen.

Dieses empfindliche Gleichgewicht wurde allerdings von einigen Geschehnissen im Tal gestört. Zum einen unterlief einer Schar Zwerge, die dabei waren, ihrem Beruf und Hobby, das Graben von unterirdischen Gängen auf der Suche nach Gold, Edelsteinen und anderem Geschmeide, nachzugehen, ein verhängnisvoller Fehler. Auf einer ihrer Tunnelexpeditionen stießen sie auf einen trockenen geräumigen Höhlenkomplex. Dort entdeckten sie zu ihrer großen Freude, nebst anderen wertvollen Gegenständen, einen fußballgroßen, roten Rubin. Völlig entzückt und nicht mehr ganz zurechnungsfähig schenkten sie den Rubin der Stadt Catanez. Und jetzt fängt die Geschichte erst richtig an. Der Höhlenkomplex war nämlich nicht eine Laune der Natur, sondern vom roten Drachen Rchachus angelegt worden. Diese unterirdischen Räume enthielten einen von ihm angesammmelten Schatz. Das meiste davon war allerdings nur Plunder, außer des Rubins. An diesem Rubin hängen außerdem einige Kindheitserinnerungen von Rchachus, und aus verständlichen Gründen möchte er ihn zurückhaben. Nach einigen erfolglosen Drohungen gegen die Stadt hat er angefangen seinen Worten Nachdruck zu verleihen. Darunter zu verstehen ist der kostenlose (unerwünschte) Abriss einiger Stadthäuser, das Unterpflügen der Ernte auf den Feldern, usw.

Zunächst ein kleiner Szenenwechsel: Dem kupfernen Drachen Cooper indes, der im Osten des Tales wohnt, bricht fast das Herz. Er hat sich in den silbernen (weiblichen) Drachen Argenta verliebt (ebenfalls wohnhaft im Tal). Einige Einwohner der Stadt haben sich nicht gerade sehr einfühlsam gegenüber Cooper verhalten, d.h. er ist nicht gut auf sie zu sprechen. Anstatt nun die rüden Methoden von Rchachus zu tadeln und zu verhindern, tobt sich Cooper ab und zu, aus Frust und Liebeskummer, selbst in der Stadt aus. Argenta allein schafft es nicht mit den drei bösen Drachen fertig zu werden.

Das Oberhaupt von Catanez, Magister Carolus Dulamann, möchte natürlich zu gerne die Rubinsache erledigen, indem er den Edelstein wieder seinem früheren Besitzer zurückgibt. Dummerweise hat der weiße Drache Whitney (ebenfalls weiblich) einen günstigen Moment genutzt und den Rubin gestohlen. Rchachus lässt sich davon nicht beeindrucken, er macht die Stadt für alles verantwortlich.

2.2 Das Ziel des Abenteuers

Meisterinformationen:

Das Ziel der Spieler wird es sein, das Gleichgewicht im Tal wieder herzustellen. In den Katakomben wird die Gruppe mit diesem Ziel bekannt gemacht. Die Teilziele werden folgende sein. Der rote Drache möchte seinen Rubin zurück. Der weiße Drache hat den Rubin, möchte aber ihr verlorenes Horn zurück. Dieses Horn wird in der Stadt von einem geizigen Kaufmann besessen. Außerdem sollen der Kupfer- und der Silberdrache miteinander verkuppelt werden. Die Erdbeben im Tal müssen natürlich auch aufhören. Dazu muss der größenwahnsinnige Zauberer Liki Nauda in seinem Bergwerk ausfindig gemacht werden. Dieser verlangt einen bestimmten Edelstein. Wenn er darum gebeten wird, befreit er auch den schwarzen Drachen von seinem Fluch. Zu guter Letzt treibt auch noch eine Bande Orks ihr Unwesen im Tal.

2.3 Die Reihenfolge

Meisterinformationen:

Die Spieler beginnen wahlweise am Nord- oder Südtor des Tals, das sich der Spielleiter nach Belieben ausschmücken kann. Dann werden die Helden irgendwann den Weg nach Catanez nehmen, einfach weil alle Straßen dorthin am deutlichsten ausgebaut sind. In Catanez selbst werden die Helden zuerst die Torwache passieren, dann ihre Begegnung mit Rchachus haben, und darauf ins Magistratsgebäude eskortiert. Dort bekommen die Helden den Auftrag, zum roten Drachen aufzubrechen, und schauen auf dem Weg dorthin wohl bei Pan Zéro vorbei. Nachdem die Mission dort scheitern muss, werden sie zum Drachenorden geschickt, und von da an ist das weitere Vorgehen nahezu beliebig. Der Spielleiter sollte sich also das Abenteuer einmal vorher durchlesen und sich beim Spielen auf fleißiges Navigieren gefasst machen. Das Dokument ist daher mit Links durchsetzt, um dem Spielleiter das Suchen zu ersparen.

3 Die Stadt Catanez

3.1 Die Torwache

Allgemeine Spielerinformationen:

Nach langer Wanderung, körperlich und finanziell erschöpft, erblickt ihr im Licht des frühen Abends die Stadt Catanez, sagenumwobenes Mekka der Glücksritter und Hasardeure. Ihr sputet Euch, um die Stadt noch vor Einbruch der Dunkelheit zu erreichen.

Vor dem Tor stützt sich eine Wache gelangweilt auf eine Hellebarde. Als ihr näherkommt hält sie Euch die Hellebarde vor die Nase und fragt: »Wie heißt Ihr und was wollt Ihr in der Stadt?«

Spezielle Informationen:

Die Gruppe kann antworten wie sie will, Hauptsache sie sagt irgendetwas. Die Wache lässt sie dann passieren. Falls die Spieler lange herumdiskutieren oder zögern, flüstert der Wachsoldat ihnen zu: »Ist mir doch egal was ihr hier wollt oder wie ihr heißt. Da hinten sitzt mein Boss, und wenn ich nicht nach den Vorschriften handele, dann bekomme ich mächtig Ärger. Also sagt irgendwas!«

Falls einige Spieler einfach Namen erfinden, kommen sie trotzdem ungehindert in die Stadt. Der Magister nutzt diese Tatsache aber später aus. Daher am besten in jedem Fall alle Namen mitschreiben, die die Helden angeben, dann fällt es nicht so auf, wenn man nur den falschen Namen mitschreibt.

Falls die Spieler sich stur stellen, ruft die Wache den Wachkommandanten. Dann wird es allerdings nicht mehr so billig für die Spieler, in die Stadt zu kommen.

3.2 Erste Begegnung mit Rchachus

Meisterinformationen:

Wenn man will, kann man nun den Spielern den Stadtplan von Catanez vorsetzen, oder aber es auch bleiben lassen. Sie können sich auch noch aussuchen, wo sie hinwollen, und ein wenig durch die Straßen laufen.

Allgemeine Spielerinformationen:

Ihr lauft durch die staubigen Straßen von Catanez. Die Stadtbewohner beäugen Euch etwas misstrauisch, aber ohne großes Interesse. Plötzlich hört ihr das hektische Schlagen einer Glocke. Die Leute auf der Straße verschwinden in ihre Häuser und verrammeln die Türen und Fenster. Bevor ihr überhaupt richtig mitbekommt, was geschieht, sind die Straßen leer.

Meisterinformationen:

Die Spieler werden es trotz eventueller Anstrengungen nicht schaffen, sich innerhalb eines Gebäudes in Sicherheit zu begeben!

Allgemeine Spielerinformationen:

Spieler X, Du hörst ein leises Flap-flap. Dieses Geräusch wird immer lauter, es muss der Flügelschlag eines ziemlich großen Tieres sein. Ein ungutes Gefühl, das Euch beschleicht, wird immer stärker, und verwandelt sich in blankes Entsetzen. Ihr seid wie gelähmt vor Angst, als im Himmel über Euch ein großer, roter Drache vorübersegelt. In immer kleiner werdenden Kreisen nähert er sich dem Erdboden. Schließlich lässt er sich auf dem Dach eines Hauses in der Straße, in der ihr Euch befindet, nieder. Die oberen Stockwerke des Hauses, offensichtlich nicht für das Gewicht eines Drachen ausgelegt, geben krachend nach. Mit wuchtigen Prankenschlägen und Flammen bearbeitet er das Haus, bis nur noch die Grundmauern stehen. Danach erhebt er sich graziös in die Lüfte und dröhnt noch von oben herab: »Ich werde wiederkommen, bis ich ihn habe!«

Eure Angst lässt langsam wieder nach, während der Drache in Richtung der untergehenden Sonne verschwindet. In der Ruine öffnet sich vorsichtig eine Kellerluke, und die völlig verdatterten Bewohner des Hauses steigen aus dem Keller heraus ins Freie.

Meisterinformationen:

Als gnädiger Spielleiter lässt man die Gruppe jetzt noch etwas in der Stadt herumlaufen und sich von ihrem Schock erholen. Früher oder später treffen sie dann auf einen Trupp Soldaten.

Allgemeine Spielerinformationen:

Eine Handvoll Soldaten steuert genau auf Euch zu. Als sie auf ungefähr zehn Schritte herangekommen sind, verbeugt sich der Anführer und spricht Euch an: »Seid gegrüßt, mutigste Helden. Euer standhaftes und unerschrockenes Verhalten im Angesicht des Drachen ist dem hochwohlgeborenen Magister Carolus Dulamann zu Ohren gekommen. Er würde Euch zu gerne persönlich kennenlernen und hat mich gebeten, Euch zu ihm zu führen. Erlaubt ihr es mir, Euch zu eskortieren, o heldenhafte Abenteurer?«

Spezielle Informationen:

Dieses Angebot klingt zwar sehr freundlich (bzw. heuchlerisch), aber der Hauptmann der Wache hat Befehl die »Helden« auch notfalls mit Gewalt zu Dulamann zu bringen.

Allgemeine Spielerinformationen:

Auf dem Weg zum Magistratsgebäude bemerkt ihr, dass sich die Straßen wieder langsam füllen. Die Leute beäugen Euch neugierig und tuscheln untereinander.

Ihr kommt an einen pompösen Bau am Marktplatz, das Magistratsgebäude.

3.3 Das Magistratsgebäude / Dulaman

Allgemeine Spielerinformationen:

Das Innere des Palastes ist nicht weniger luxuriös eingerichtet. Die Wachen führen Euch in einen großen Saal, an dessem Ende, auf einer Erhöhung, ein Thron steht. Auf dem Thron sitzt ein voluminöser Mann. Er spricht Euch mit einer dröhnenden Stimme an: »Willkommen in Catanez, mutigste Abenteurer! Ich freue mich, dass Ihr meiner Einladung gefolgt seid. Was haltet Ihr von einer kleinen Erfrischung bzw. Stärkung?« Dulamann deutet auf einen Tisch der außerhalb auf dem geräumigen Balkon steht. Auf dem Tisch sind allerlei Leckereien aufgetürmt.

Spezielle Informationen:

Falls die Spieler nicht freiwillig auf den Balkon gehen, werden sie »nett« von den Wachen gebeten. Wenn einer der Spieler am Stadttor einen falschen Namen genannt hat, nutzt dies jetzt Dulamann aus, denn zufälligerweise ist der erfundene Name sehr berühmt in dieser Fantasywelt und der Magister weiß von dieser Popularität. In der folgenden Ansprache wird er dann erwähnen: »Ja, selbst X ist hier, um uns zu helfen!«

Allgemeine Spielerinformationen:

Auf dem Balkon habt ihr einen Überblick auf den Marktplatz, auf dem sich eine nicht allzu kleine Menschenmenge angesammelt hat. Carolus Dulamann wendet sich den Leuten zu und spricht sie an: »Liebe Bürgerinnen und Bürger von Catanez, wir stehen kurz vor der Lösung unserer Probleme. Diese Schar wagemutiger Helden hat versprochen uns zu helfen.« Er dreht Euch seinen Kopf zu und grinst Euch an. Danach fährt er mit seiner Lobeshymne auf Euch fort. Die Menschen auf dem Platz sind begeistert.

Spezielle Informationen:

Die Spieler könnten Unmut äußern und sich mit ihrer Heldenrolle nicht identifizieren. Dulamann wird dann antworten: »Tja Leute, Ihr sitzt jetzt mit mir in der Patsche. Die Leute werden toben, wenn Ihr einen Rückzieher macht, sie werden Euch lynchen.«

Allgemeine Spielerinformationen:

Nach seiner Rede rückt der Magister mit der ganzen Wahrheit heraus. Er erzählt Euch folgende Geschichte: »Es fing damit an, dass eine Gruppe Zwerge hier in den Bergen nordwestlich der Stadt Bergbau aufnahm. Nach einem erfolglosen Start wurden sie dann doch noch fündig. Aus Dank und Freude schenkten sie der Stadt einen ihrer Funde, einen großen Rubin. Und damit fing unser Problem an. Die Zwerge verließen unser Tal, um woanders ihr Glück zu versuchen. Besser gesagt, sie machten sich aus dem Staub, denn auf ihren Grabungen müssen sie auf eine geheime Schatzkammer gestoßen sein und sie ausgeräumt haben. Der Besitzer der Schatzkammer war ein roter Drache, der sein Eigentum zurückforderte. Die Zwerge waren inzwischen über alle sieben Berge, aber der Rubin war bzw. ist noch in der Stadt und der Drache fordert ihn immer noch zurück. Aus diesem Grund besucht er uns ab und zu, um seiner Forderung Nachdruck zu verleihen. Die Bewohner von Catanez werden langsam unruhig, aber ich habe bis jetzt, trotz versprochener hoher Belohnung, niemand finden können, der den Rubin zurückbringt. Aber das sollt Ihr ja jetzt übernehmen! Der Drache hat versprochen, den Überbringer des Rubin ungeschoren davonkommen zu lassen, unter der Bedingung, dass er ihn an einem Zeichen, einer roten Fahne, sofort erkennen kann.«

Dulaman gibt Euch 50 Dukaten als Vorschuss und meint: »Weitere 250 Dukaten gibt es nach erfolgreicher Beendigung des Auftrags. Geht in die Kneipe »Zum grünen Drachen«. Dort findet Ihr einen Mann namens Pan Zéro. Er kennt sich in dieser Gegend aus und arbeitet als Kundschafter. Sagt ihm Dulamann schickt Euch. Außerdem empfehle ich euch noch vor Antritt der Reise einen Besuch beim Drachenorden hier gleich gegenüber – niemand sonst in Aventurien hat so viel Wissen über Drachen angehäuft, das kann nützlich für euch sein.« Dann gibt er Euch noch eine Stange mit einem roten Wimpel.

3.4 Zum Grünen Drachen / Pan Zéro

Spezielle Informationen:

Die Spieler werden die Kneipe und auch den Kundschafter relativ leicht finden. Kein Wunder, denn Pan Zéro gehört zur »Stammkundschaft« der Kneipe und ist oft da. Der Magister hat allerdings »vergessen«, eine Kleinigkeit zu erzählen. Pan Zéro arbeitet natürlich nicht umsonst und erwartet eine angemessene Bezahlung für seine Arbeit. Er wird 100 Dukaten fordern. Diese Summe kann durch Feilschen heruntergehandelt werden. Als nächstes müssen die Spieler um die Ausrüstungsgegenstände verhandeln. Falls Pan Zéro freie Hand gelassen wird, besorgt er Reitpferde, Packpferde, Proviant und diverse mehr oder weniger nützliche Gegenstände. Die Kosten dafür wird er selbstverständlich der Gruppe anlasten.

3.5 Der Tempel des Drachenordens

Spezielle Informationen:

Wenn die Helden von ihrer erfolglosen Mission beim roten Drachen zurückkehren, könnte sich dieser Misserfolg sehr schnell in der Bevölkerung herumsprechen und Anlass genug sein, gegen den Drachenorden zu murren, der tapfer versucht, die Drachen verbal in Schutz zu nehmen. Da der Drachenorden direkt gegenüber vom Magistratsgebäude steht, können ein paar Mönche, die vor dem Orden stehen, Opfer von tätlichen Übergriffen werden. So können die Helden möglicherweise Rauko kennenlernen. Ansonsten werden sie von Dulaman irgendwann dorthin geschickt:

Meisterinformationen:

Rauko trägt ein Mönchskostüm: Rote Kutte mit Kapuze, Drachenamulett mit Drachenblick nach rechts.

Allgemeine Spielerinformationen:

Der Tempel des Drachenordens steht nicht weit vom Magistratsgebäude mitten in der Stadt. Das hohe Dach des Tempels wird von vielen Säulen getragen. Auf den Stufen vor dem Eingang kommt Euch ein Mönch in roter Kutte entgegen, die Kapuze tief ins Gesicht gezogen. Er trägt ein Amulett um den Hals, das einen Drachen darstellt. Er begrüßt Euch freundlich: »Seid willkommen, mutige Abenteurer, mein Name ist Rauko. Der Magister hat Euren Besuch schon angekündigt!«

Spezielle Informationen:

Er wird die Helden in den Tempel führen, den man ganz nach Belieben ausschmücken kann – was eben nötig ist, um den Helden einen Besuch lohnenswert erscheinen zu lassen. Allerdings sollte klar werden, dass niemand in der Stadt so viel über Drachen weiß wie der Drachenorden.

Meisterinformationen:

Doch nun etwas zur Geschichte des Drachenordens: Seit der Besiedelung des Tals vor über 1000 Jahren (wann genau, liegt im Dunkel) wurden in diesem Tal die Drachen verehrt, allerdings anfangs auf der Basis einer Naturreligion. Die Drachen stellten ihre Forderungen nach Gold und eventuell auch Jungfrauen und Jünglinge, und die primitiven Menschen gaben sie ihnen. Bereits damals gab es bald eine Priesterkaste – die Leute, die mit den Drachen sprechen durften.

Doch irgendwann vor etwa 600 Jahren murrte das Volk, sie wollten die Forderungen der Drachen (und auch der ganz gut von dem Privileg lebenden Priesterkaste) nicht mehr einfach so hinnehmen.

Da erschien vor etwa 500 Jahren Draco auf der Bildfläche, der Religionsstifter. Er erschuf aus der einfachen Naturreligion eine moderne, abstrahierte Version: Fortan sollten nicht mehr die Drachen direkt verehrt werden, sondern die Drachenheit an sich. Gegen den heftigen Widerstand der alten Kaste setzte sich seine Meinung schließlich durch, und die Rolle der Mönche des Ordens wandelte sich: Zum einen traten sie bescheidener auf, obwohl sie in diesem von Drachen dominierten Tal immer noch eine wichtige Rolle spielten. Doch andererseits half dieser neue Blickwinkel, die Drachen auch als Studienobjekt zu sehen, und so wurde nirgendwo so viel Wissen über Drachen angesammelt wie in diesem Orden.

Mittlerweile ist diese Zeit der Blüte jedoch vorbei, der Drachenorden ist wieder dabei, zu verknöchern und den Sinn hinter den Ritualen zu vergessen. Er steht den Verhältnissen im Tal genauso hilflos gegenüber wie alle anderen.

Allgemeine Spielerinformationen:

Alle Mönche tragen ein Amulett:

Amulett

Spezielle Informationen:

Irgendwann führt Rauko die Helden an einem komischen Gerät vorbei:

Allgemeine Spielerinformationen:

Auf einem Tisch befindet sich ein Drachenkopf aus Stein, in dessen offenem Maul eine Kugel liegt. Darunter befindet sich eine Metallschüssel, und daneben befindet sich ein Mönch mit einer Triangel in der Hand. Doch momentan ist er wohl eingeschlafen.

Meisterinformationen:

Bei diesem Gerät handelt es sich um einen Erdbeben-Warner. Bei einer leichten Erschütterung fällt die Kugel aus dem Maul in die Metallschüssel. Dies sollte der wachhabende Mönch bemerken, die Triangel schlagen, was wiederum den Glöckner alarmiert. Binnen weniger Sekunden weiß so die ganze Stadt von dem Erdbeben.

Spezielle Informationen:

Hier sollten nun alle Helden eine Gewandheitsprobe ablegen, und bei einem Misslingen fällt die Kugel in die Schüssel, der Mönch wacht erschreckt auf, triangelt, und die Glocken beginnen zu läuten. Ähnliches tritt bei neugierigen Spielern ein, die die Kugel anstoßen, den Drachen streicheln, oder ihre musische Ader entdecken und selbst die Triangel schlagen.

Spätestens jetzt erklärt Rauko den Helden stolz die Funktion des Geräts, nachdem er einige Mühe hatte, diesen Fehlalarm abzublasen.

3.5.1 Die Katakomben

Allgemeine Spielerinformationen:

Nach einer Weile führt euch Rauko eine Treppe hinab in ein Untergeschoss des Drachenordens. Ihr befindet euch nun in einem von Fackeln erleuchteten Gang mit gelegentlichen Türen.

Spezielle Informationen:

Nun kann man den Spielern eine Karte vom Rundgang der Katakomben skizzieren.

Die vier Türen in den Seiten öffnet Rauko bereitwillig, sie enthalten ein paar ausrangierte Statuen, zwei Räume sind eine Art Museum/Schatzkammer mit wertvollen Gegenständen aus vielen Jahrhunderten, und einer der vier Räume ist schlicht und einfach eine Besenkammer.

Die Tür zu Dracos Kammer dagegen wird er nicht öffnen, und ebenso die Tür gegenüber: Diese ist zweiflüglig und enthält keine Griffe oder Schlösser, aber dafür zwei Einfassungen, in die eventuell die Amulette passen könnten, die die Mönche alle tragen. Falls sie Rauko danach fragen, so erzählt er, dass sein Drachenkopf tatsächlich in die rechte Fassung passt – doch die Abbildung in der linken Fassung, die dasselbe Bild spiegelverkehrt darstellt, trage kein Mönch und sei auch nirgendwo hier aufzutreiben, denn das Abbild spiegelverkehrt sei Blasphemie und verheiße Unglück. Darum heiße diese Tür auch die »verbotene Tür«.

Die Tür zu Dracos Kammer lässt sich wie die vier Türen am Rand leicht mit einer Talentprobe oder einem Zauberspruch knacken, doch die Tür mit den Amulett-Einfassungen widersetzt sich jedem Versuch in dieser Hinsicht.

In einem geeigneten Moment, wenn sich alle Helden weit hinten befinden, passiert tatsächlich ein Erdbeben:

Allgemeine Spielerinformationen:

Ihr spürt plötzlich ein leises Grollen unter euren Füßen. Wenige Augenblicke später hört ihr aus der Ferne ein leises Pling, gefolgt vom heftigen Schlagen einer Triangel. Danach hört ihr nur noch ein lautes Grollen, und schon ist die Treppe verschüttet.

Spezielle Informationen:

Als Rauko das bemerkt, bleibt er erst einmal gelassen: »Keine Panik, wir haben noch einen zweiten Ausgang.« In einer der vier Seitwärts-Gruften benutzt er eine Geheimtür, nur um festzustellen, dass der Gang dahinter noch gründlicher verschüttet ist. Dann schiebt er Panik, und nun ist es an den Helden, weiterzumachen.

Wenn die Helden nun Dracos Kammer betreten wollen, so ist der Mönch trotz anfänglichem Zögern dazu bereit, einfach weil er selbst keinen anderen Ausweg weiß.

3.5.2 Dracos Kammer

Allgemeine Spielerinformationen:

Der erste Eindruck dieser Kammer ist: Staub. Jahrhunderte ohne einen Putzlappen haben für eine ordentliche Staubschicht auf allem gesorgt. Der Raum ist etwa 3 mal 4 Meter groß und 3m hoch. An der Mitte der gegenüberliegenden Wand befindet sich eine Erhöhung, zu der von den drei übrigen Seiten Treppenstufen aufsteigen. Darauf befindet sich ein Steinsarkophag. Ansonsten ist der Raum leer.

Spezielle Informationen:

Wenn die Helden den Sarkophag genauer untersuchen, sehen sie erstens, dass auf dem Sarkophag dieselben beiden Symbole wie auf der »verbotenen Tür« sind, und zweitens, dass der Steindeckel des Sarkophags einen kleinen Spalt offenlässt, allerdings zu wenig, um hineinzusehen.

Bisher waren alle Helden so neugierig, den Sarkophag zu öffnen – ein Vorhaben, das Rauko ablehnen, aber in seiner Panik dulden wird. Falls die Helden zu brav sind, so wird Draco ohne ihre Hilfe auferstehen müssen.

Allgemeine Spielerinformationen:

Unter lautem Krachen fällt der Steindeckel zu Boden und wirbelt dort Staub auf, der euch erst einmal die Sicht raubt. Nach einiger Zeit werft ihr einen Blick in den Sarkophag, und tatsächlich, dort liegt mumifiziert eine Gestalt. Um ihren Hals trägt sie ein Amulett ähnlich dem, das Rauko und alle Mönche tragen, nur spiegelverkehrt.

Spezielle Informationen:

Rauko ist beim Anblick dieses Amuletts ehrlich schockiert.

Falls ein Held das Amulett an sich nehmen will, so darf er das tun, ansonsten wird die Mumie später freiwillig das Amulett den Helden überreichen, dabei aber eine Warnung mitgeben, die die Helden unbedingt irgendwie noch mitbekommen müssen.

Allgemeine Spielerinformationen:

Da bewegt sich plötzlich die Mumie und setzt sich auf. Rauko verneigt sich ehrfürchtig und fordert euch stumm auf, dasselbe zu tun.

Spezielle Informationen:

Eigentlich ist es egal, ob die Helden dieser Aufforderung nachkommen, denn es geht gleich weiter.

Allgemeine Spielerinformationen:

Die Mumie beginnt in einer sehr alten Sprache mit sehr vielen Konsonanten etwas zu sagen, das ihr nicht versteht. Rauko aber lauscht angestrengt, stellt ein paar Gegenfragen, und lauscht wieder. Dabei greift er auch einmal an sein Amulett und scheint eine Frage zu stellen. Dann, als die Mumie verstummt, wendet er sich an die Helden:

»Gemäß einer alten Legende wird Draco wieder auferstehen, wenn das Gleichgewicht im Tal so gefährdet ist, dass dessen Untergang innerhalb von 100 Tagen droht, und sich erst wieder friedlich zur Ruhe legen, wenn das Gleichgewicht wieder hergestellt ist. Und nun ist er auferstanden. Die Dinge stehen also ausgesprochen schlecht.

Ihr könnt uns helfen, dieses Gleichgewicht wieder herzustellen. Dazu müsst ihr erst einmal herausfinden, was mit den Drachen nicht stimmt, dass sie sich nicht mehr wie bisher in ihrer Macht ausgleichen.

Die Belohnung wird selbstverständlich angemessen sein – wie ihr seht, die Lage ist ernst, und das eine oder andere Stück aus den Räumen hier hat sicher euer Interesse geweckt.

Draco weist euch an, mit Hilfe seines und meines Amuletts die Tür zu öffnen, doch sollt ihr ansonsten auf dem Weg in die Freiheit nichts berühren, oder ihr seid nicht würdig und somit verflucht.«

Spezielle Informationen:

Spätestens jetzt wird Draco das Amulett ausziehen und einem Helden überreichen, der sich traut, dem Untoten nahe zu kommen.

Wenn die Helden nun zur Tür eilen, lässt sie sich problemlos mit Hilfe beider Amulette öffnen.

3.5.3 Der Gang der Versuchung

Allgemeine Spielerinformationen:

Nachdem die Tür sich wie magisch geöffnet hat, offenbart sie euch ein Zimmer, in dem es überall glitzert und funkelt – kostbare Schätze müssen hier angehäuft sein! Vom Staub der Jahrhunderte keine Spur!

An der gegenüberliegenden Wand befindet sich ein kleines Portal in den nächsten Raum.

Abgesehen von dem Licht, das durch die nun offene Tür in den Raum fällt, ist es sonst dunkel, so dass ihr lange Schatten in den Raum werft.

Spezielle Informationen:

Die Helden werden sich nun mit Fackeln aus dem Flur ausstaffieren oder sonstwie für Licht sorgen. Ansonsten sehen sie in den Kammern dahinter nichts.

Nun ist für alle Helden eine Goldgier-Probe fällig. Falls Sie das als Meister zu riskant finden, würfeln Sie diese verdeckt. Auf alle Fälle haben die anderen Helden noch eine Chance, den gierigen Kumpanen mit einer KK-Probe, mit vereinten Kräften oder sonstigen Tricks zurückzuhalten.

Wenn ein Held doch das Gold berührt, so bekommt er einen magisch-eletrischen Schlag mit 20 SP.

Dann werden die Helden wohl in den nächsten Raum gehen.

Allgemeine Spielerinformationen:

Der nächste Raum stellt eine der edelsten Waffenkammern dar, die die Welt je gesehen hat: Wunderbare Zweihänder, fantastisch verzierte Schwerter und Barbarenstreitäxte, Kampfstäbe … alles, was so ein Kämpferherz begehrt.

Auch hier geht es auf der anderen Seite weiter.

Spezielle Informationen:

Wenn Ihnen hier eine geeignete Probe einfällt, machen Sie die. Wenn Sie keine Kämpfer in der Gruppe haben, können Sie den Inhalt der Kammer auch nach Belieben modifizieren. Ansonsten wie in der ersten Kammer vorgehen.

Doch kommen wir nun zur dritten Kammer:

Allgemeine Spielerinformationen:

Dieser Raum ist im Gegensatz zu den anderen fast völlig leer – bis auf einen etwa 1m hohen Steinsockel in der Mitte, auf dem ein aufgeschlagenes Buch liegt.

Und wieder geht es auf der anderen Seite weiter.

Spezielle Informationen:

Die Helden können nun, wenn sie clever sind, den Spruch abschreiben. Wenn sie ihn gleich laut vorlesen, haben sie Pech: Die Schrift löst sich vom Papier, Buchstabe für Buchstabe, beim Lesen. Auch beim Abschreiben löst sich Strich für Strich das Original auf.

Falls sie jedoch das Buch berühren, gilt die übliche Strafe.

Nach dem dritten Raum kommt nur noch ein kurzes Gangstück, das an einer Leiter endet. Oben befindet sich ein Deckel, der sich relativ leicht (KK-Probe) anheben lässt.

Damit landen die Helden in einer Kapelle im Magistratsgebäude, und der Deckel ist nun aus dieser Perspektive ein Altar.

Dann geht es zurück in den Orden, wo sie und Rauko freudig begrüßt werden. Rauko setzt den Orden von der Auferstehung Dracos in Kenntnis und preist die Helden als Retter des Tals an.

3.6 In einer Kneipe

Meisterinformationen:

Eine Kneipe ist der ideale Ort, um Leute zu treffen, die mehr über das Tal wissen. Falls die Helden partout Kneipen meiden, muss der Spielleiter ihnen die Informationen auf anderem Wege zuspielen.

Allgemeine Spielerinformationen:

Eine gut gefüllte Kneipe mit gemischtem Publikum. Ein Barde spielt ein Lied, das die anderen Gäste bereits zu kennen scheinen, zumindest hören sie nicht aufmerksam zu, geben ihm aber trotzdem bereitwillig ein paar Kupfermünzen. Als ihr die Schänke betretet, wenden sich die Gesichter euch kurz zu, und die verschiedensten Emotionen spiegeln sich darin wieder – Überraschung, Spannung, Bewunderung, Enttäuschung, und natürlich auch das dumpfe alkoholvernebelte Stieren.

Ihr findet noch ein paar zusammenhängende Sitzplätze.

Spezielle Informationen:

Die Helden haben nun Zeit, etwas zu bestellen.

Allgemeine Spielerinformationen:

Nachdem der Barde das Lied beendet hat, beginnt er mit dem nächsten. Dabei fasst er besonders euch ins Auge und fordert durch Gestik, Mimik und Stimme eure Aufmerksamkeit. Die anderen Gäste hören bestenfalls mit einem Ohr zu.

Opus Liki Nauda

| Download: OpusLikiNauda.mp3 | Download: OpusLikiNauda.mid
AmSo, ihr Leute, Em/Glasst euch Amsagen,
Was Amsich vor Em/Gkurzem Amzugetragen
Es Dmist noch nicht so Elange Amher,
wie's Dmeigentlich wünschenswert Ewär
Es Amwar auch ganz hier Em/Gin der AmNähe,
Und Amlieber wärs mir Em/Gnicht so Amnah,
Ein DmKampf wie Krähe Egegen Krähe –
Und Fich erzähl euch, Gwie es war: G→D→F→Em7
Denn Amdie Geschicht ist Gnicht er-Amfreulich
Die AmHandlungsträger Gsind gar Amgreulich
Ein DmDrache, göttlich Ezwar, doch Amhässlich
Ein EbmMagier, schwarz, böse und Fgrässlich Ebm F
Lasst Ammit dem Magier Em/Gmich be-Amginnen
Ein Amdunkel Geschöpf, Dä-Em/Gmonen-Ambrut
DmMaßlos und mächtig, Bb/Dgrausam und gierig
EmBitter und böse bis ins Am/Etiefschwarze Blut
Er ver-Ammochte es gar, den GMond zu ver-Amlöschen,
Auch das AmBeben der Erde, das Gwar sein AmTun,
Er, DmHerr der Gezeiten, Bb/EMeister der Winde, Bdim/EBezwinger des Feuers –Dm7/E
Nur die DmSeelen der Wesen ließen Em7ihn nicht Amruhn.
Und Amganz in der Nähe, da Ghauste ein AmDrachen
Ein Amgöttlich Geschöpf, Dmgrau-Emsam und Amrot
Mit Ammächtigen Schwingen, Schwanz, GTatze und FRachen G F
Der brachte C/DKummer und Schrecken, AmLeiden und Tod
Auf Amsus2einer Lichtung ge-Amsus2/Gschah nun das Unglück
Der Amsus2/FMagier sucht Kräuter für Amsein Gebräu
Der Dm7Drache denkt sich: Den Emnehm ich zum Am7Frühstück
Und Fsup7stürzt sich auf ihn Gmit Rase-Amrei
Der AmMagier ist mächtig, doch der Gsus2Drache ist Amstark
Es wird er-Ambittert ge-Emkämpft bis aufs AmBlut
Zaube-Amrei Ignifaxius, DmFulmi-Emni-Amquark
und FZähne und Klauen und GFeuer-Eglut
Der AmMagier war mächtig, doch der GDrache ob-Amsiegte
Denn auch Amer war Ar-Gkanspezia-Amlist
So Fzog er denn stolz wieder Gin die AmLüfte
Und Fseitdem, da Gwird er ver-Ammisst
In-Dmdes der Magier, Emhalb-Amtot geröstet
DmSchwört Embittere Rache im AmSchmerz
Dann Dmschwinden die Sinne, die EmSeele wird Amunstet,
Es Dmstocken schon fast Blut und EHerz
Doch er Amhat Glück im Unglück, denn Emkurze Zeit Amspäter
da Amkommt eine holde EmSchönheit des AmWegs
Be-Amwandert in Heilkunst, spielt Emsie Sani-Amtäter
AmGibt ihm Bandagen und Embraut heiße AmTees
Ja sie Amhegt und sie pflegt ihn, sie Emrettet sein AmLeben
Schließlich Amkommt er wieder zu EmLebens-Ammacht
Da Ammerkt sie, sie liebt ihn, und Emwill sich ihm Amgeben –
Es Amfolgt eine unvergleichliche EmLiebes-Amnacht.
Doch am Dmnächsten Morgen, da Emwar er ver-Amschwunden
Ihr Dmfielen da wieder seine EmWorte Dmein
Er Dmhabe geschworen, drum Emsei er gebunden
Dem DmDrachen die Schmach zu zahlen Eheim
Seit-Amdem, liebe Leute, ward er Emnicht mehr Amgesehen
Dieser AmMagier, der Liki EmNauda ge-Amnannt
Und Amauch vom Drachen seit-Emdem kein Ge-Amschehen –
Fast als Amwären sie beide von der EmErde ver-Ambannt. G→F→G→E
FSo und nicht anders Gist es ge-Amschehen
Drum Fmerkt euch meine Em7Worte Amgut
Doch Fnun denkt an durstige GSänger-Amkehlen
Und Ffüllet fleißig Gmeinen CHut
C   F   G   C

- Strophen für Unaufmerksame: -

Ihr Fseid echte Helden Gwie von der AmRolle
In Fder Geschichte und Ge-Gschichten Fstehn
Doch Dmnie ersetzt EPapyrus meine AmKunst –
Drum Flauschet gut, gewährt mir die GGunst.
Ich Dmglaube gar, ihr Emseid AmBanausen,
Drum Flass ich ein paar Teile Gsausen
Doch Dmwer nicht hören Emwill, wird Amfühlen
Zer-Fmahlen in den DmSchicksals-Emmühlen

Meisterinformationen:

Eine Kneipe ist auch der richtige Ort, in dem nicht ganz zurechnungsfähige Gestalten den Helden ungefragt (richtige oder falsche) Gerüchte aufschwatzen.

Gerüchte
Gerüchtwahr?
Der alte Kaufmann Mc Scrooge besitzt ein Einhornhorn. (halbwahr)
Eine Orkbande terrorisiert die Gegend. (wahr)
Es gibt mindestens 10 Drachen im Tal. (übertrieben)
Der Magister hat eine von den berühmten Drachenlanzen im Keller. (falsch)
Auf der Insel im See liegen Reichtümer. Aber niemand ist bisher von dort lebendig zurückgekommen. (halbwahr)
Es gibt ein altes geheimnisumwittertes Bergwerk im Osten. (wahr)
Es gibt einen Riesen im Wald. (falsch)
Es gibt eine Riesenschlange im Sumpf. (falsch)
Im alten Schloss spukt es. (nach Laune des Spielleiters wahr oder falsch)
Es gab hier mal einen gigantischen Kampf zwischen einem Drachen und einem Schwarzmagier. Ist aber schon ne Weile her. (wahr)

3.7 McScrooge

Spezielle Informationen:

Den Helden wird in Catanez Schlehmihl über den Weg laufen und ihnen ein Einhornhorn andrehen wollen. Sein Ziel ist es, die Helden in den Laden von McScrooge zu locken. Wenn nötig nervt er die Helden so lange – jedesmal wenn sie wieder in Catanez sind, läuft er ihnen über den Weg – bis sie sich breitschlagen lassen.

Meisterinformationen:

Wer Schlehmihl aus der Sesamstraße kennt, weiß schon, wie er diese Meisterperson zu spielen hat. (»Hey, Du! Nur 1999 Dukaten!«)

Der Laden von McScrooge ist ein gehobener Gemischtwarenladen: Trödel, Kitsch und Antiquitäten aus ganz Aventurien, und auch ein paar ziemlich obskure Dinge. McScrooge weiß auch um die seltsamsten Aberglauben und ist bereit, sie alle zu bedienen.

Meisterinformationen:

McScrooge selbst ist ein geiziger Kaufmann. Ihm gehört das angebliche Einhornhorn, bei dem es sich eigentlich um das Horn von Whitney handelt.

Schlehmihl ist von ihm beauftragter Kundenfänger.

Älterer, knochentrockener, harter Verhandlungsgegner. Hat Privatwachen.

Die Helden haben unter anderem folgende Möglichkeiten, das Einhornhorn an sich zu bringen:

  • Einbruch
  • Raubüberfall (Achtung, Leibwachen!)
  • Kaufen. Falls die Helden das Geld vom Magister holen, wird der allerdings Falschgeld aushändigen, was Mc Scrooge bemerkt und die Helden von der Stadtwache abführen lässt. Der Magister wird sich darauf bei den Helden entschuldigen (»Ich habe euch da nur die letzten Steuereinnahmen gegeben – das wird noch Ärger geben …«) und nun selbst mit Mc Scrooge verhandeln, um den Helden dann das Horn auszuhändigen.

4 Die Drachen

4.1 Der rote Drache (Rchachus)

4.1.1 Der Weg zum Roten Drachen

Allgemeine Spielerinformationen:

Am Morgen des nächsten Tages brecht ihr zusammen mit Pan Zéro in Richtung Norden auf. ihr reitet (lauft) zunächst auf der Straße und kommt ziemlich schnell vorwärts. Nach einem Tagesritt (bzw. zwei Tagesmärschen) verlasst ihr die Straße und betretet das hügelige Grasland im Westen von Euch.

Spezielle Informationen:

Das Vorwärtskommen gestaltet sich allmählich immer schwieriger, da das Land immer weiter ansteigt und zerklüfteter und felsiger wird. Nach einiger Zeit (zwei, drei Tage) stößt die Gruppe auf einen Pfad. Ab diesem Zeitpunkt wird Pan Zéro versuchen, sich abzusetzen. Dies wird entweder heimlich des Nachts geschehen, oder, wenn die Spieler aufpassen, wird der Kundschafter sich weigern weiterzugehen. In der ersten Variante wird er einen großen Teil der Ausrüstungsgegenstände mitnehmen und einen Zettel hinterlassen auf dem steht: »Dringende Geschäfte bewirkten meine etwas eilige Abreise nach Catanez. Aber ihr findet jetzt den Drachen auch ohne mich. Folgt einfach dem Pfad.« In der zweiten Variante wird er ähnliche Gründe angeben und darauf verweisen, dass seine Mitarbeit nicht mehr nötig ist. Falls man ihn zum Weitergehen zwingt, wird er einen Anteil an der Belohnung für das Überbringen des Rubin fordern.

4.1.2 Rchachus selbst

Meisterinformationen:

Meisterinformationen
Geschlecht: männlich
Ausrichtung: böse
Drachenangst: sehr stark, denn Rchachus demonstriert gerne Stärke.
Verhalten: Jähzornig, mächtig, stark, arrogant.
Aufgabe der Helden: Wiederbeschaffung des (echten) roten Rubins.

Für die erste Begegnung:

Spezielle Informationen:

Falls die Gruppe dem Pfad folgt, wird sie an einem großen Felsvorsprung angelangen. Im Westen steigen die Berge weiter an und dort befindet sich auch der Eingang einer Höhle. Falls die Spieler sich auf die Höhle zubewegen, wird sich folgendes zutragen.

Allgemeine Spielerinformationen:

Ihr hört aus der Höhle ein leises Zischen. Sie scheint bewohnt zu sein. Urplötzlich springt ein riesiger, roter Drache mit einem gewaltigen Satz aus der Höhle. Ihr habt wieder diese schreckliche Angst, wie zuvor in der Stadt. Diesmal ist es sogar noch schlimmer. Ihr liegt zitternd am Boden. Der Drache lässt gewaltige Mengen von Luft in seine Lunge strömen. Nach einigen Schwierigkeiten schaffst Du, Spieler X, es die rote Fahne zu schwenken. Der Drache hört mit dem Einatmen auf und brüllt: »Ah, mein Rubin. Wo ist er?« Er fordert Euch auf, ihm den Rubin hinüberzuwerfen. Nach der Übergabe beäugt er den Rubin misstrauisch. Eine ganze Weile untersucht er den Edelstein, dann wirft er ihn mit voller Wucht gegen einen Felsen, wo er in tausend Scherben zerspringt. Voller Wut schreit er Euch an: »Ihr wagt es, mir ein billiges Imitat aus Glas anzudrehen? Nun gut, da ihr gern Spielchen spielt, werde ich Euch ein nettes meiner Spiele zeigen. Ich gebe Euch fünf Minuten Vorsprung, dann komme ich!« Ihr merkt, wie die Angst langsam nachlässt. Ihr könnt aufstehen und Euch wieder bewegen. Der Drache macht keine Bewegung, sondern schaut Euch nur an.

Spezielle Informationen:

Die Gruppe kann jetzt weglaufen. Der Drache gibt ihnen allerdings nur drei Minuten Vorsprung. Siehe Abschnitt »Ten ways to leave your dragon« für eine passende Abschüttelung des Verfolgers.

4.2 Der weiße Drache (Whitney)

Meisterinformationen:

Meisterinformationen
Geschlecht: weiblich
Ausrichtung: böse
Drachenangst: Ja, zur Einschüchterung.
Verhalten: Nicht so stark wie der rote Drache, arbeitet aber mit List und Tücke. Egoistisch, raffiniert.
Aufgabe der Helden: Sie hat den roten Rubin gemopst, hinter dem der rote Drache her ist. Ihr fehlt aber ein Horn auf dem Kopf. Und das stört sie, denn sie ist eitel.

Für die erste Begegnung:

Allgemeine Spielerinformationen:

Auf dem Felsen über euch sitzt ein weißer Drache und beäugt euch neugierig: »Holla, wen haben wir denn hier?«

Spezielle Informationen:

Zuerst ist der Drachen recht unfreundlich: »Haut ab aus meinem Gebiet!«

Einem der Spieler fällt eine Assymetrie auf, denn dem Drachen fehlt ein Horn.

Wenn die Helden dem Drachen das Horn zurückgeben:

Spezielle Informationen:

Nun ist der Drache erstmal so sehr damit beschäftigt, das Horn mittels Magie wieder »anzukleben«, dass die Helden in dieser Zeit in die Höhle eindringen und den roten Rubin stehlen können. (Ansonsten rückt sie ihn halt nach Verhandlungen heraus, dieser Teil des Abenteuers ist zu wichtig.)

4.3 Der schwarze Drache (Rossus)

Meisterinformationen:

Meisterinformationen
Geschlecht: männlich
Ausrichtung: böse
Drachenangst: Solange nicht der Fluch von ihm gelöst ist ist der dazu nicht in der Lage. Danach natürlich schon.
Verhalten:

Hat keine magischen Fähigkeiten mehr, kann also auch keine Drachenangst auslösen, seit der Magier Liki Nauda ihn mit einem Fluch belegt hatte. (Der Kampf wird von einem Barden ausgeschmückt geschildert.)

Versucht auch, die Gruppe einzuschüchtern, doch er hat selber allen Grund, sich vor der Gruppe selbst zu fürchten. Muss also bluffen und prahlen.

Letztendlich ist er immer noch ein harter Kampfgegner, auch ohne magische Fähigkeiten. Seine Werte entsprechen dann etwa denen eines Baumdrachen. Doch während eines Kampfes wird er sich nach Kräften bemühen, durch Vernunftargumente jedes Blutvergießen auf beiden Seiten zu vermeiden.

Aufgabe der Helden: Den Magier dazu bringen, den Fluch vom schwarzen Drachen zu lösen.
Sonstiges: Ist eigentlich ein roter Drache, nur wegen Fluch schwarz.

4.4 Der Kupferdrache (Cooper)

Meisterinformationen:

Meisterinformationen
Geschlecht: männlich
Ausrichtung: gut
Drachenangst: Keine Drachenangst, außer die Gruppe benimmt sich daneben.
Verhalten:

Anfangs: Melancholisch, unglücklich verliebt in den Silberdrachen, passiv, misslaunisch.

Einige Einwohner der Stadt haben sich nicht gerade sehr einfühlsam gegenüber Cooper verhalten, d.h. er ist nicht gut auf sie zu sprechen. Anstatt nun die rüden Methoden von Rchachus zu tadeln und zu verhindern, tobt sich Cooper ab und zu, aus Frust und Liebeskummer, selbst in der Stadt aus.

Nach dem Verkuppeln: Er und Argenta arbeiten intensiv zusammen, die führende Rolle dabei spielt aber Argenta. Cooper ist sich nun seiner neuen Stärke bewusst, überheblich, aber immer noch umgänglicher als Argenta.

Aufgabe der Helden: Verkuppeln mit dem Silberdrachen.

Cooper hat eine Kristallkugel (Fernsicht), die er anfangs benutzt, um seufzend seinen Schwarm zu betrachten.

Idee: Um ihr seine Liebe zu zeigen, gibt er der Gruppe ein kostbares Geschenk für sie mit, zum Beispiel ein goldenes Flakon Al'Anfa-Schuppenduftöl.

4.5 Der Silberdrache (Argenta)

Meisterinformationen:

Meisterinformationen
Geschlecht: weiblich
Ausrichtung: gut
Drachenangst: Keine Drachenangst, außer die Gruppe benimmt sich daneben. Wobei sie bei einem Übergewicht der guten Drachen bereits vorsichtige Kritik als unflätiges Benehmen deutet.
Verhalten:

Anfangs: Freundlich zur Gruppe.

Würde dem Treiben der anderen Drachen im Tal gerne Einhalt gebieten, doch alleine ist sie machtlos.

Findet Cooper an sich sympathisch, doch findet, in letzter Zeit habe er sich seltsam verhalten. Weiß nichts von seiner Liebe oder seiner Kristallkugel.

Doch wenn die Gruppe ihr verrät, was mit dem Kupferdrachen los ist, ist sie rasch überzeugt. Sie schenkt einen Drachenflugatlas mit allen wichtigen Luftkorridoren und rituellen Landeplätzen zurück.

Falls die guten Drachen im Vorteil sind (also bereits verkuppelt, solange die Rätsel zu den bösen Drachen noch nicht gelöst sind): Überheblich, von einem Praios zu Ehren gereichenden Ordnungsdrang besessen. Nun sieht sie die Chance der Realisierung Ihrer Ideen und verkündet bei sich bietender Gelegenheit zusammen mit Cooper der Stadt von Catanez ein Ultimatum.

Aufgabe der Helden: Verkuppeln mit Cooper.

Spezielle Informationen:

Falls die guten Drachen im Vorteil sind (also bereits verkuppelt, solange die Rätsel zu den bösen Drachen noch nicht gelöst sind):

Allgemeine Spielerinformationen:

Der Silber- und der Kupferdrache landen mit majestätischen Flügelschlägen vor den Toren der Stadt. In der Stadt ist es totenstill, als Argenta ihre Stimme erhebt:

»Bürger von Catanez, Bürger dieses Tals,

Das Chaos in diesem Tal muss ein Ende haben! Und zwar rasch! Daher haben Cooper und ich beschlossen, dass hier wieder Ordnung einkehren muss! Wenn ihr nicht innerhalb einer Woche die folgenden Bedingungen erfüllt, so sehen wir uns gezwungen, die politische Macht an uns zu reißen und fortan selbst dieses Tal zu regieren.

  1. Nächtliche Ausgangssperre
  2. Totales Alkoholverbot
  3. Verbot von Glücksspielen
  4. Einschränkung der freien Meinungsäußerung
  5. Verstärkung der Stadtwache auf die zehnfache Stärke
  6. Erhöhung der Steuern zur Deckung der erhöhten Ausgaben und als Tribut an die neuen Herrscher

Wie gesagt, Bürger dieses Tals, eine Woche! Ansonsten werden wir selbst diese Forderungen durchzusetzen wissen.«

Spezielle Informationen:

(Eine Rede, die die Bürger von Catanez mit erheblichem Murren, Dulaman mit Panik, und die Drachenmönche mit einem sehr unguten Gefühl zur Kenntnis nehmen.)

4.6 Vom Umgang mit Drachen

Meisterinformationen:

Wie kann man Helden und Drachen wieder auseinander bringen? Vor allem: Wie schaffen es Helden, einen Drachen zu verlassen?

  1. Deus ex machina: Hobbit etc., der den Helden hilft (geht besonders gut beim roten Drachen).
  2. Vulkanausbruch/Erdbeben geht mal wieder los, und der Drache hebt erst mal ab, um sich in Sicherheit zu bringen.
  3. Drachen blenden mit Zauberspruch direkt aufs Auge.
  4. Drachen wild machen, so dass er alles in einen Hexenkessel verwandelt.
  5. Schleimen, was das Zeug hält, denn Drachen sind eitel.
  6. Einschüchtern (geht nur beim schwarzen Drachen).
  7. Dragonsbane-Spruch aus dem Buch in den Katakomben, den eventuell jemand kopiert hat.
  8. Amulett von Draco kann eventuell auch Drachen beeindrucken.
  9. Bestechen.
  10. Wenn sie den Drachen schon zum x-ten Mal nerven: Der Drache haut von alleine ab und hat die Nase voll.

Falls die Helden sich unbedingt mit einem Drachen anlegen müssen und einen Kampf beginnen: (außer der Schwarze Drache, der hat schlechte Karten …)

Reaktionen der Drachen auf Kampf
1. Mal: Drache entfesselt lokalen Sturm, alle Helden verlieren Orientierung, totales Chaos, 10 SP für jeden Held durch herumfliegende Partikel.
2. Mal: Nun ist es bereits ein kleiner Feuersturm, 20 SP pro Held.
3. Mal: Großer Feuersturm, Helden sofort tot.

5 Das alte Bergwerk / Liki Nauda

Meisterinformationen:

Es gibt hierzu eine Karte.

5.1 Das erste Mal im Bergwerk

Allgemeine Spielerinformationen:

Ihr steht nun an dem alten Haupteingang des ehemaligen Bergwerks. Alte Loren aus Holz und andere Reste primitiven Bergbaus liegen dort herum. Auch die Schienen für die Loren bestehen aus Holz und sind nun bereits am Verrotten. Sie führen in den Berg, doch der Eingang ist völlig mit Geröll verschüttet.

Spezielle Informationen:

An ein Freigraben des Haupteingangs ist nicht zu denken. Wenn die Helden aber ein wenig die Gegend durchsuchen, so finden sie etwa 50m im Westen, und ein wenig um den Berg herum, einen alten Stollen, hinter Buschwerk versteckt.

Der Stollen ist knapp körperhoch und etwa 1m breit und macht keinen vertrauenserweckenden Eindruck. Er ist nicht abgesichert, die Wände sind rissig, und wenn ein Held damit in Berührung kommt, so bröckelt weiter Fels und Erde ab.

Doch wenn die Helden sich mit Beleuchtung in den Stollen hineinwagen (Raumangst-Probe), werden sie nach etwa 20m feststellen, dass ab dann im Inneren des Bergs die Stollen professionell abgestützt sind.

Wenn sie in den toten Abzweigungen herumhängen, passiert nichts weiter, doch man kann für ein wenig stimmungsvolle Atmosphäre sorgen …

Allgemeine Spielerinformationen:

Der enge Stollen, durch den ihr wandelt, wirkt ausgesprochen unheimlich, denn das flackernde Licht eurer Fackeln scheint seltsam von den Wänden zu reflektieren. Nach einer Weile stellt ihr fest, dass die Wände selbst leicht floureszieren. Ab und zu hört ihr in die Stille hinein das Tropfen von Wasser oder Fledermauskot, und ein aufgescheuchtes Flattern einer Fledermaus, die vor eurem hellen Licht flieht …

Spezielle Informationen:

Bei den floureszierenden Wänden handelt es sich um einen Bewuchs mit Phosphorpilz, einer selbstleuchtenden Flechte.

Wenn die Helden in den langen geraden Gang vor der Kammer kommen, so passiert nach etwa 20m folgendes:

Allgemeine Spielerinformationen:

Ein leichter Luftzug weht euch plötzlich durch den Stollen entgegen, der sehr rasch sehr stark wird und beinahe orkanartige Züge erreicht. Er ist so stark, dass alle eure Fackeln verlöschen und ihr plötzlich im Dunkeln steht. Aber nicht für lange: Gleichzeitig scheint das Floureszieren von den Wänden im Gang an Intensität zuzunehmen, und es wird grell und heiß um euch herum.

Spezielle Informationen:

Die Hitze strahlt von der Decke und den Wänden aus, aber zum Glück nicht vom Boden. Die Helden werden also bald auf die Idee kommen, sich hinzulegen oder zumindest zu knien, ansonsten werden sie von einer Windbö herumgeworfen und kommen dabei mit der Wand in Kontakt (1W Schaden).

Das Vorwärtskommen im Stollen gestaltet sich nun sehr schwierig, und die Leute mit viel Gepäck sollten sich überlegen, wie sie eine möglichst aerodynamische Form abgeben. Auf alle Fälle soll es die Helden erschöpfen.

Allgemeine Spielerinformationen:

Nachdem ihr euch mühsam weitere 20 Schritt weit gekämpft habt, seht ihr in der Ferne ein Skelett auf euch zueilen. Durch den leichten Körperbau scheint ihm der heftige Rückenwind wenig auszumachen. Es ist mit einem Schwert bewaffnet.

Spezielle Informationen:

Nun ist es an der Zeit, eine Totenangst-Probe würfeln zu lassen. Bei einem positiven Ergebnis ergreift derjenige Held sofort die Flucht, notfalls über die anderen Helden hinweg. Das Skelett beginnt einen Kampf mit dem vordersten Helden. Wegen der Enge des Ganges kann jeweils nur ein Held mit dem Skelett kämpfen.

Wenn das Skelett ernst getroffen wird, so fliegen die Knochen im Wind den Helden entgegen und über sie hinweg. (Falls Knochen direkt einen Helden treffen, vielleicht nochmal eine Totenangst-Probe?)

Allgemeine Spielerinformationen:

Nach weiteren anstrengenden 30 Schritt kommt aus der Ferne ein etwa einen halben Meter großes Spinnenwesen auf euch zugekrochen. Seinen Beinen scheint die Hitze von den Wänden nichts auszumachen, und aus eurer bodennahen Perspektive wirkt das Tier groß und unheimlich.

Spezielle Informationen:

Wenn sich die Helden auch diesem Tier zum Kampf stellen wollen, so wird es bei kleineren Treffern noch wie erwartet mit dem Verlust von Gliedmaßen oder Fühlerhaaren reagieren, und jede Attacke des Tieres geht seltsamerweise schief. Denn beim ersten harten Treffer, den ein Held dem Tier zufügt, stellt dieser fest, dass die Waffe einfach wie Butter durch das Tier hindurchgeht – es handelt sich also um eine Illusion, durch die man einfach hindurchgehen kann.

Allgemeine Spielerinformationen:

Am Rande eurer Kraft erreicht ihr das Ende des langen Ganges. Ihr habt jedes Gefühl dafür verloren, wie weit ihr gekrochen seid, es kommt euch vor, es seien Meilen gewesen. Doch es ist noch immer nicht zuende: Der Gang hier macht nur eine Biegung nach links.

Doch als ihr der Biegung folgt, stellt ihr fest, dass dort der Wind und die Hitze ein Ende haben. Leider sind nun eure Fackeln aus, so dass ihr nur im Restlicht des Gleißens die ersten Meter des Ganges erkennen könnt. Diese sehen etwa so aus wie die ruhigeren Stollen, nur dass hier keine Flechten die Wände erleuchten – oder scheint es euch nur so, geblendet wie ihr seid?

Spezielle Informationen:

Nun haben die Helden Gelegenheit, wenn sie daran denken, ihre mitgenommenen Gegenstände wieder wie gewohnt zu verstauen.

Allgemeine Spielerinformationen:

Als ihr dem Gang folgt, gewöhnen sich eure Augen wieder langsam an das Dunkel, und tatsächlich, hier beleuchtet nichts mehr die Wände. Außer ein Lichtschein ein paar dutzend Meter vor euch – ob das das Ende des Ganges ist?

Ihr geht darauf zu, und eure Ahnung wird zur Gewissheit. Schließlich steht ihr am Eingang zu einer großen, rechteckigen Höhle von etwa 8x4 Schritt, etwa 3 Schritt hoch. Ein kurzer Blick offenbart euch als Inneneinrichtung einen kleinen Tisch mit vier Stühlen direkt gegenüber, zur rechten dazu ein großes, unordentliches Regal, und zur Linken befindet sich ein riesig langer Tisch, auf dem sich Papiere und seltsame Apparaturen stapeln. Davor fällt euch nun eine Gestalt auf – völlig in eine schwarze Robe gekleidet – weil sie sich nun bewegt. Sie wendet ihre Aufmerksamkeit vom Schreibtisch ab und dreht sich langsam in eure Richtung. Irritiert stellt ihr dabei fest, dass fast jeder Zentimeter ihrer Haut bedeckt ist: Schwarze Robe, schwarze Handschuhe, sogar das Gesicht ist verhüllt und lässt nur zwei schmale Schlitze, hinter denen ihr die Augen und den Mund vermutet.

Spezielle Informationen:

Da erfahrungsgemäß jede Heldengruppe hier anders vorgeht, lese man vorher gründlich die Meisterhinweise zur Person und entscheide selbst ihre Reaktion.

5.2 Liki Nauda

Meisterinformationen:

Liki Nauda ist ein Schwarzmagier, der sich einst einen heftigen Kampf mit dem nun schwarzen Drachen lieferte, und ihn daraufhin mit dem Fluch belegte. Siehe dazu auch den Liedtext vom Barden.

Sitzt im Bergwerk. Dort experimentiert er mit seiner Magie und löst die Erdbeben aus, die das Tal erschüttern.

Größenwahnsinnig, überheblich. Typische Sprüche:

»Eigentlich sollte ich euch jetzt töten. Aber wenn ich erst Herrscher der Welt bin, werdet ihr sowieso alle vor mir knien.«

»Ihr könnt mir keine Angst einjagen.«

Trägt schwarze Kutte, schwarze Handschuhe … So dass man nur die Augen und nichts von der Haut sieht. Aus gutem Grund, die Haut ist noch immer sehr mitgenommen und voller Verbrennungsnarben von dem Kampf.

Will den weißen Stern haben, der auf einem Tempel auf einer Insel im See Loch Ainatoll liegt. (Dort dürfen nur gute Wesen hin, deshalb kommt Liki Nauda selbst nicht dorthin.) Wenn sie ihm den Stern bringen, kann er ihn auch nicht anfassen, so dass er ihn nur mit der Zange bearbeiten kann. (Weiß er das gleich? Wenn nicht, Zischen und verbranntes Fleisch :-)

Dafür ist er dann bereit, den Fluch vom Schwarzen Drachen zu lösen. Dazu gibt er den Helden eine Schriftrolle mit, auf der zwei Sprüche verwoben sind: Einmal wird wirklich der Fluch gelöst, und dann ein Schlafzauber. (Im Ermessen des Spielleiters: Auf wen wirkt der Schlafzauber? Nur auf den Drachen? Wenn nicht, könnte sich Lauda damit aus dem Staub machen, wenn die Gruppe ihn überwältigt und mit zum Drachen geschleppt hätte.)

Man bedenke aber, dass Liki Nauda sehr mächtig ist und sehr viel Zeit hatte, sich auf die Begegnung vorzubereiten. Wenn die Gruppe es also auf einen Kampf ankommen lässt, kann Nauda ein ganzes magisches Feuerwerk zünden und die Gruppe außer Gefecht setzen. Im dem Fall muss er von sich aus den Handel (Weißer Stern gegen Erlösung des schwarzen Drachen) vorschlagen, oder die Gruppe zwingen, den Weißen Stern zu holen, und ihnen dann erst als Belohnung die Schriftrolle zum Erlösen zu geben.

6 Loch Ainatoll / Der weiße Stern

6.1 Das Fischerdorf Cirya

Meisterinformationen:

Die Fischer am See sind verängstigt. Sind nicht bereit, in den Nebel zu fahren, oder ihr Boot dafür herzugeben – außer der Preis stimmt, um Aberglauben und Lebensgefahr bzw. Verlust des Schiffes vergessen zu lassen.

6.2 Loch Ainatoll

Meisterinformationen:

Das Besondere an Loch Ainatoll ist, dass die Mitte dieses Sees immer im Nebel verhüllt ist. Doch Legenden erzählen, dass dort eine Insel sei. Das finden auch die Spieler irgendwann heraus, sei es in dem Fischerdorf am See, sei es bei Liki Nauda, sei es im Drachenorden. Auf der Insel befand sich vor vielen Jahren einmal ein Praiostempel, der nun jedoch anscheinend verflucht und verlassen ist. Liki Nauda schickt die Helden irgendwann dorthin, um ihm dort einen legendären Weißen Stern zu besorgen.

Spezielle Informationen:

Wenn es die Helden irgendwie geschafft haben, sich einen schwimmenden Untersatz zu besorgen (sei es durch Abkauf eines Bootes von einem Fischer oder sonstwie), so gestalte man die Ruder- oder Segelfahrt mit etlichen Proben ruhig abenteuerlich. Innerhalb des Nebels ist die Orientierung um 10 erschwert. Dort herrscht Flaute, also nützen einem Segel auch nichts mehr. Und es müssen zwei Leute an die Ruder, denen beide die Ruderprobe gelingen muss. (Falls die Gruppe nur aus 4 Helden oder weniger besteht, reicht auch ein Ruderer.) Möglicherweise wird die Gruppe also mehrmals in den Nebel eintauchen und sich an den verschiedensten Stellen im See neu orientieren müssen. Doch irgendwann erreichen sie hoffentlich die Insel.

6.3 Die Insel

Allgemeine Spielerinformationen:

Irgendwann meint ihr, im Nebel einige dunklere Flecke ausmachen zu können. Doch ihr Wesen bleibt euch vorerst verborgen. Der Nebel ist nun so dicht, dass ihr gerade noch die Hand vor Augen sehen könnt, doch die Ruderblätter verschwinden bereits im Nebel. In dem Moment, in dem ihr die Insel seht, fahrt ihr bereits auf Grund. Noch seht ihr fast nur Wasser, doch wo die Insel ist, könnt ihr aus den dunklen Flecken im Nebel schemenhaft erahnen.

Spezielle Informationen:

Die Gruppe wird nun wohl das Boot an Land ziehen und vorsichtig die Insel erkunden. Vorsichtiges Auftreten wie Aneinanderbinden usw. sollte belohnt werden, und wenn jemand den Fehler macht, sich weiter als 10 Meter vom Rest der Gruppe zu entfernen, sollte er danach eine Orientierungsprobe ablegen, je nach Entfernung satt erschwert.

Allgemeine Spielerinformationen:

Die dunklen Flecken stellen sich beim Näherkommen als abgestorbene, dürre und hohe Bäume heraus. Hier ist alles tot. Kein Vogel, kein Gras, keine Blätter an den Bäumen. Lediglich ein Moos und sonstige pflanzliche Parasiten findet man hier. Da – ihr seid nicht ganz sicher, ob euch da nicht die unterreizten Augen einen Streich spielen – scheint sich in all den dunkleren Flecken ein heller Fleck abzuzeichnen.

Spezielle Informationen:

Jede halbwegs normale Heldengruppe wird sich nun wohl diesem hellen Fleck nähern.

6.4 Der Tempel

Meisterinformationen:

Es gibt für den Tempel und die Geheimgänge darunter Karten.

Allgemeine Spielerinformationen:

Beim Näherkommen zeigt der weiße schummrige Fleck immer schärfere Konturen. Zuerst stellt ihr fest, dass es sich vermutlich um ein Gebäude handelt, das völlig in Weiß verputzt sein muss. Als ihr glatte Säulen vor den Wänden ausmacht, denkt ihr an einen Tempel oder ein Orakel. Auf der euch zugewandten Seite befindet sich in der Mitte, dekorativ von zwei schlanken Säulen umrahmt, ein offenes Portal.

Spezielle Informationen:

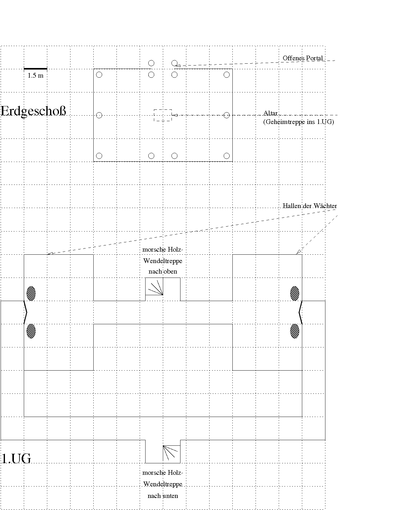
Falls die Helden den Tempel betreten, kann man ihnen den oberen Teil von Bild anskizzieren und das Innere des Tempels beschreiben.

Allgemeine Spielerinformationen:

Das Innere des Tempels sieht ähnlich wie die Außenseite auf. Die Wände werden von schlanken, glatten, weißen Säulen dekoriert. Auch die Wände sind weiß und glattpoliert. Der Boden besteht aus großen flachen grauen Steinplatten. Der einzige Einrichtungsgegenstand scheint ein Altar zu sein, der sich genau in der Mitte des Raums befindet.

Spezielle Informationen:

Falls praiosgläubige Mitglieder der Gruppe hier zu ihm beten, so zählt das mehr als ein normales Tempelgebet. Dieser Ort ist zwar verflucht, aber von Praios noch immer bewacht. Und da die Helden sich hoffentlich auch anschicken, einiges von dem, das Praios erzürnte, auszumerzen, sollte auch das beim nächsten Gottesurteil bedacht werden.

Die Helden wird vielleicht der gute Zustand des Tempels erstaunen, doch ein wenig wirkt hier noch göttliche Macht. Das einzige Stück, dessen nähere Untersuchung erfolgreich ist, ist der Altar: Man kann ihn (unter hoher Kraftanstrengung, also KK-Probe) verschieben. Und dort tut sich dann eine morsche Holzwendeltreppe nach unten auf. Jeder Held, der diese Treppe hinabklettert, muss eine Körperbeherrschungsprobe ablegen, leichte Helden (Gepäck mitberechnen!) bekommen diese Probe erleichtert. Ein Mißlingen der Probe führt dazu, dass eine Treppenstufe nachgibt, was die Proben für die Nachfolger erschwert, und ein Sturz nach unten, der 1W6 Trefferpunkte gibt.

6.5 Die Geheimgänge

Allgemeine Spielerinformationen:

Dort unten befindet ihr euch nun in einem dunklen Gang (wer hat Fackeln dabei?), der nach links und rechts weitergeht. Die Treppe befand sich also in einer Gangnische. Der Gang ist etwa 1 1/2 Schritt breit.

Spezielle Informationen:

Bild unten hilft nun weiter. Da dieses Stockwerk völlig symmetrisch aufgebaut ist, ist es egal, für welche Richtung sich die Helden entscheiden, es passiert immer das Gleiche. Am Ende des Ganges wartet nach wenigen Metern eine zweiflüglige Tür auf sie. Dahinter ist es völlig ruhig. Die Helden werden also einen Blick hineinwerfen.

Allgemeine Spielerinformationen:

Dieser Raum ist völlig leer, bis auf eine weitere zweiflüglige Tür genau gegenüber, und zwei Statuen von furchterregenden Kreaturen, die diese Tür zu bewachen scheinen.

Spezielle Informationen:

[PENDING: Um was für verzauberte schwarze Kreaturen soll es sich hier handeln? Chaoskrieger gibt es in DSA nicht, Golems sind zu heftig?]

Auf alle Fälle werden die Kreaturen auf einmal lebhaft zu kämpfen beginnen, sobald jemand die Tür anfasst, die sie bewachen, oder aber die Kreaturen selbst angegriffen werden.

Dahinter geht der Gang weiter, bis zu einer weiteren Wendeltreppe (diesmal aus Stein) nach unten, die in das nächste Level führt.

Spezielle Informationen:

Dieses nächste Level ist in Abbildung 2. UG dargestellt. Auch die Treppe in den Kugelraum ist aus Holz und damit morsch. Was sich dort abspielt, kommt in Abschnitt Der Kugelraum.

In diesem Stockwerk gibt es noch eine Zeitfalle. Sobald jemand die Tür öffnet, die in den Gang mit der Zeitfalle führt, passiert folgendes:

Allgemeine Spielerinformationen:

Ihr hört laut und deutlich ein Klicken. Klick – Klick – Klick – Klick – …

Spezielle Informationen:

Die Helden haben nun 15 Sekunden Zeit, sich für eine Aktion zu entscheiden. Falls ein Held innerhalb dieser Zeit den Gang mit der Falle betritt, so löst er ein schweres Schwungbeil aus, das ihm direkt von vorne und oben entgegenschwingt und schweren Schaden (im Ermessen des Meisters) zufügt, solange ihm nicht eine außerordentliche Gewandheits- oder Ausweichenprobe gelingt. Falls die Helden vor Schreck wie gelähmt sind oder sonst nichts tun, hört das Klicken nach dieser Zeit einfach auf, und sie können den Gang problemlos durchqueren.

6.6 Der weiße Stern

Spezielle Informationen:

In der Nähe des weißen Sterns sollten alle nicht praiosgefälligen Helden ein deutliches Unwohlsein spüren – je dunkler der Held und je näher, desto stärker. Bei Schwarzmagiern z.B. kann das bis zu starken körperlichen Schmerzen reichen, und heftigen Verbrennungen bei Berührung.

[PENDING: Doch was kann der Stein? Das Speichern magischer Energien, also eine Astralpunktbatterie?]

6.7 Der Kugelraum

Spezielle Informationen:

Das Vorgehen bei einer morschen Wendeltreppe wurde bereits geschildert. Nach nur 2 Metern wartet am unteren Ende unvermittelt eine Öffnung im Boden, wo eigentlich die nächste Stufe sein solle, und dort hat man von schräg oben einen Blick in einen völlig kugelförmigen Raum mit einem Durchmesser von etwa 6 Metern.

Einige Helden können sich nun abseilen und ein wenig unten herumspazieren. Dabei werden sie feststellen, dass die Kugel rollbar gelagert ist. Die Helden befinden sich also immer unten, nur Wand und damit die Öffnung darin verschiebt sich. Und zwar so, dass die Treppe verdeckt wird (hängt von dort noch ein Seil herab? Dann geht es dort nicht weiter, doch auf Dauer wird das Seil dort durchgeschnitten). Wenn die Helden so weit herumspazieren, dass die Öffnung genau nach unten zeigt, so stellen sie fest, dass dort wieder ein Gang nach unten führt, der begeh- oder bekriechbar ist.

Dort unten wartet dann wieder ein spezieller Raum, wo auf einem Tisch ein besonderes Schwert bereitliegt. Dort ist eingraviert: »Tod den Untoten«, und tatsächlich hat es stark verbesserte Kampfwerte (AT+4, TP+4) zur Folge, wenn man das Schwert gegen Untote erhebt. Doch sollte man es einmal gegen ein lebendes Wesen heben, so verwandelt es sich augenblicklich in einen Blumenstrauß.

Falls jemand in der Gruppe so clever sein sollte, um damit Draco zu töten, so ist das keine gute Idee: Draco als Indikator für Auftragserledigung scheidet nun aus, und die Mönche werden sofort die Stadtwachen verständigen, nachdem sie erst einmal selbst ihre Wut an den Helden ausgelassen haben. Dulaman selbst ist auch nicht begeistert, und wird, nur um sicherzugehen, dass die Helden nun auch wirklich das Gleichgewicht hergestellt haben, sich noch ein paar Zusatzaufgaben ausdenken, und gleichzeitig den Lohn auf 0 reduzieren – sie sollen froh sein, dass so imkompetente Helden überhaupt am Leben gelassen werden. Das Tal ist so gut abgeschottet, dass an Flucht kaum zu denken ist.

7 Weitere Orte

7.1 Das Dorf Miraelin

Spezielle Informationen:

Ein an sich idyllisch gelegenes kleines Dorf, wenn nur die Erdbeben nicht wären. In der Nähe gibt es fruchtbare Wiesen, Felder und einen Wald. Die meisten Menschen leben von der Landwirtschaft.

Im Dorf läuft den Helden zuerst Theodora über den Weg, ein 7-8 Jahre altes Mädchen. Frech. Hüpft gerade spielend durch das Dorf, als die Helden ankommen, und fragt die Helden neugierig und furchtlos aus. Tochter von Anama, und führt die Helden gerne zu ihr.

Meisterinformationen:

Anama ist eine sehr gute Heilerin, hat eine Tochter Theodora, und ist verheiratet mit Shapeshifter. Anama war die Heilerin, die Liki Nauda nach seinem Kampf mit dem Drachen geheilt hat.

7.2 Kleiner Junge am See

Meisterinformationen:

In Wirklichkeit Shapeshifter und Mann von Anama.

7.3 Alte Ruine

Meisterinformationen:

Es liegt in der Entscheidung des Spielleiters, ob er hier den übernachtenden Helden eine Geisterschar präsentieren möchte. Wenn ja, so handelt es sich dabei um Abenteurer, die am Rätsel in der Ruine gescheitert sind und dazu verdammt sind, ewig vor sich hinzusummen auf der Suche nach der richtigen Melodie. (Aber Geister sind nicht besonders gut darin, einen Ton zu halten …)

8 Karten und Legenden

8.1 Das Drachental

Das folgende Bild ist die Übersichtskarte des Drachentals. Je nach Bildausschnitt kommt man durch einen Klick auf eine von acht Seiten in Großansicht. Diese überlappen sich leicht, so dass man sich diese Großansichten leicht (am besten DIN A4) ausdrucken und dann zusammenkleben kann. Die leichten Farbunterschiede haben keine Bedeutung – daran ist nur der Bildscanner schuld.

nordwesten nordosten westen 1 osten 1 westen 2 osten 2 südwesten südosten Karte des Drachtentals
Erläuterung der Kartensymbole:
Gebirge
Hügel
Laubwald
Nadelwald
Grasland
Feld
Steppe
Sumpf
See
Fluss
Straße
Weg
Pfad

Auf der Karte sind ein paar Stellen mit Nummern bezeichnet. Ein paar der Nummern kennzeichnen tatsächlich wichtige Punkte. Um es den Spielern nicht zu leicht zu machen, haben wir auch ein paar unwichtige Stellen so markiert.

Besondere Stellen auf der Karte
NrBedeutung
1 Catanez (Hauptstadt)
2Koboldüberfall
3Dorf Taurim, von Orks gebrandschatzt
4Tempel des weißen Sterns (Loch Ainatoll)
5Spieler stolpert über einen spitzen Stein
6Kupferdrache
7Kleiner Junge fischt am See
8Roter Drache
9Südtor
10Silberner Drache
11Dorf Miraelin
12Alte Frau sammelt Holz. Harmlos, aber als Hexe verschrien und ausgestoßen.
13Nordtor
14Dorf Athraduin (nix besonderes)
15Altes Bergwerk (Liki Nauda)
16Alte Ruine
17Weißer Drache
18Hier steht eine Eiche
19Ork-Camp (Boss hat Kammschwert / Gift)
20Schwarzer Drache
21Holzfäller bei der Arbeit
22Lichtung / Steinkreis
23Herumstreifende Orks
24Fischerdorf Cirya
25Ein schöner Fels
26Kleine Lichtung
27Hohe Berge
28Wegelagerer (Überfall)
29Hier wird's sumpfig

8.2 Die Katakomben

Karte der Katakomben

8.3 Das Bergwerk

Karte des Bergwerks

8.4 Der weiße Tempel

Karte des Tempels 1
Karte des Tempels 2